查看: 119|回复: 0

丁克夫妻与汪星人的77㎡,60w把两居改一居?音乐角、休闲 ...

[复制链接]

3

主题

5

帖子

11

积分

新手上路

Rank: 1

积分
11
发表于 2023-1-12 15:25:48 | 显示全部楼层 |阅读模式


设计部落 | 公众号 shejibuluo

这套77㎡的老房是一对夫妻俩的婚房,一起生活了几年后,随着观念和生活方式变化,他们慢慢发现了很多居住痛点——对家的居住需求越来越明确,不再想为了非常低频的需求浪费空间或牺牲自己的舒适度。

由于是丁克主义,家里平时只有夫妻二人,领养了一只田园犬取名“猫猫”~(狗子:为啥给我取这么个名字???)在找到@恒田重新设计的时候,“猫猫”作为家里重要的一份子,也有着整整一页文档的专属需求。



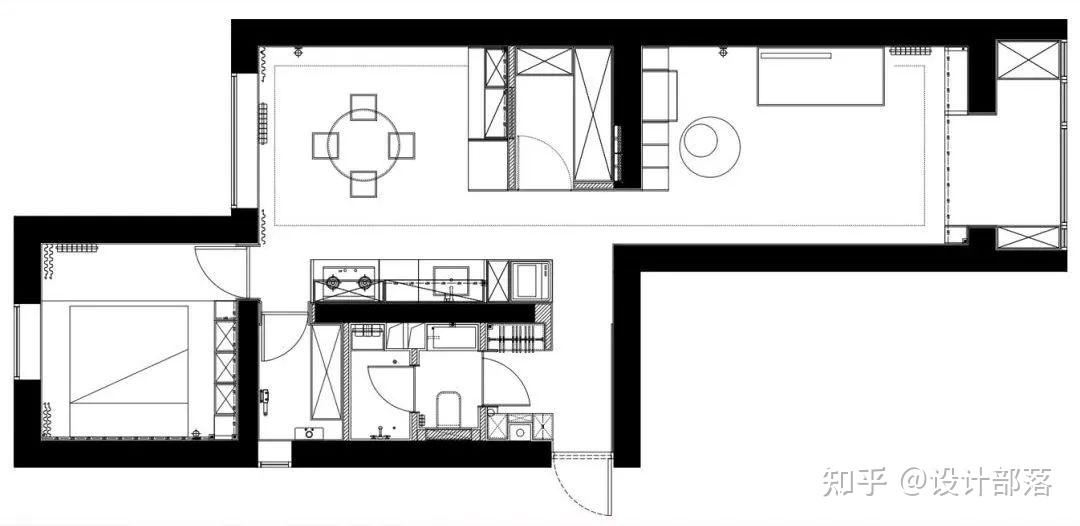
老房子由于设计年代较早,与现在的生活观念往往存在较大差异,导致很多生活上的不便:
问题梳理:
1、玄关与厨房面积都很小;
2、次卧利用率低;
3、没有单独的家政储物区;
4、动线混乱,插座位置不合理也不够用;
5、灯光设计也不美观。



针对屋主的这些问题和居住习惯,将全屋空间进行了重新规划与分配,由于老房几乎都是无法改动的承重墙,最大的改动是将两间卧室改为一室
改造要点:
1、优化入户动线,实现双储物间、家政区、卫生间干湿分离
2、主卧改为客厅,阳台打造为榻榻米休闲区;
3、厨房开放式设计,增加水吧功能,打造餐厨一体空间
4、原厨房打造为独立衣帽间,释放了主卧睡眠空间;
5、原次卧作为主卧,做了地台床设计。

玄关



入户门看向室内

原户型缺乏玄关,没有储物空间,入户是一个狭窄的走廊,一侧是卫生间。

进门右手边做了整面洞洞板设计,可以灵活收纳进出门需要的小物件,狗子外出用品也收纳在这里。 日常回到家后,放下衣物和包包,转身就可以进入卫生间洗手,动线很方便。

卫生间



进门左侧是卫生间,将墙面向内推,扩大使用面积,实现干湿分离的同时,在卫生间外部也形成了一个储物区



卫生间内部也充分利用了墙面空间,洗漱区与马桶区双镜柜的设计,不仅扩充了储物功能,视觉上也放大了空间感受


走廊



利用原客厅的部分空间,将玄关走廊的尽头隔出一个储物间,入口是极简的通顶白色门,犹如白墙,视觉上不觉得突兀。



储物间内部呈L型布局,右侧是开放式衣帽收纳区,正对面还做了一面独立的家政柜,关上门后,可以将不美观隐藏起来。

客厅



走廊的右前方是原主卧改造来的客厅,一改之前的纯白色,沙发背景墙采用浓郁的陶土棕,并装饰了slogan壁灯,个性十足。



夫妻俩对客厅的定位就是装下工作、爱好和狗狗。 这里没有固定某一种标签化的风格,而是完全打造成了屋主喜欢和需要的样子。



男主是一名摇滚乐队的鼓手,由于有在家练鼓的需求,在客厅为他开辟了专属的音乐排练角



客厅也没有采用传统的茶几,而是用一个小推车作为边几使用,可以灵活移动位置,也为狗子释放了更多活动空间。



纸杯造型的落地灯搭配开放式书架,就营造了一个休闲阅读角落

阳台



阳台做了榻榻米设计,两侧设置书柜,打造为一个超级舒适的休闲区。



榻榻米内部可以作为客厅杂物的收纳,温润的木饰面坐在上面也很舒适,晴朗天气里,阳光柔柔透过白纱帘,屋主可以在此小憩、午睡或与狗子玩耍。

厨房



从客厅角度看向餐厅。



洗衣区设置在餐厅面向走廊的一侧,距离储物间很近,动线方便。



原客厅作为餐厨空间使用,宽敞舒适。



由于屋主家做饭以简单为主,开放式厨房的适配度就比较高,还增加了水吧台功能。





绿色地柜搭配木色顶柜,墙面是经典小白砖,配色清新自然。



木质圆桌和藤编餐椅,也进一步强调了慵懒放松氛围。



整个餐厨一体化设计,让这里不再只是单纯烹饪的空间,也拥有了更多的互动与功能性,成为家庭交流的第二核心区。

卧室



利用原户型的小厨房空间,将这里改造为了卧室旁的独立衣帽间,将衣物集中收纳,为卧室释放了更多空间。



地台床的低重心会带来安全感,同时让视线得到延伸,让睡眠环境变得更加温馨、舒适。



采用灵活的百叶帘,私密感很好。



保留了一个体量感不大的储物柜,方便就近收纳小物件和贴身衣物等。简约的空间搭配柔和又有层次感的灯光设计,营造出温馨的沉浸式睡眠氛围。





藤编收纳篮,简约的半墙设计,搭配柔和有层次感的灯光,营造出温馨的沉浸式睡眠氛围



原主卧空间作为客厅,次卧作为主卧;其余的空间通过优化布局,实现了卫生间干湿分离、两个入户储物间+一个独立衣帽间,以及宽敞开放的餐厨空间,实现了两人一汪的超幸福生活。

房屋信息
项目地址:北京
建筑面积:77㎡
项目花费:60w

设计团队:恒田设计
设计费用: 800元/平米
回复

使用道具 举报

您需要登录后才可以回帖 登录 | 立即注册

本版积分规则

Archiver|手机版|小黑屋|多点娱乐

GMT+8, 2026-1-30 20:09 , Processed in 0.142536 second(s), 23 queries .

Powered by Discuz! X3.4

© 2001-2017 Comsenz Inc.

快速回复 返回顶部 返回列表